| |
 |
|
|
 |
 |
北京乡电电力有限公司 主营行业:新能源/环保行业 所在地区:亚太地区中国北京 联系地址:北京海淀区中关村大街27号中关村大厦611室 邮政编码:100086 联系人员:
袁先生: 13301354588
工作语言:中文 电话号码:86-10-82856138 传真号码:86-10-82856301 电子邮件:www1998@126.com
单位网址:
http://www.bjteep.com http://www.bjteep.cn
http://m.bjteep.cn |
|
| 您现在的位置:北京乡电电力有限公司 > 公司简介 |
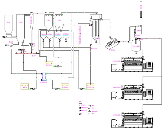
北京乡电电力有限公司成立于2001年,总部位于北京中关村海淀科技园,曾于2016、2019年获得国家高新技术企业称号,2015、2018年获得中关村高新技术企业称号,2015、2018年度政府采购中关村新技术新产品首台(套)重大装备示范项目。公司常年致力于生物质热解气化行业的技术研发、设备制造、项目建设与运营,具备持续研发能力、丰富的项目经验、独立自主的知识产权体系。公司具有知识产权26项。其中自有实用新型专利7项。另有发明专利1项、实用新型专利11项、外观专利4项、软件著作权3项转让给北京乡电的子公司。公司除尘除焦等核心技术获得国家工信部鉴定,获得专家“项目技术具有显著的除尘除焦效果,经济、社会效益明显(工信部科评字[2015]第102号)。生物质气化发电成套设备已经销往山西、河北等地,并远销泰国、日本等国(子公司销售),获得客户的好评。
 
|
|